Prodaja - Surčin - Radiofar, Autoput za Zagreb

75.850 €

1.850€/m²
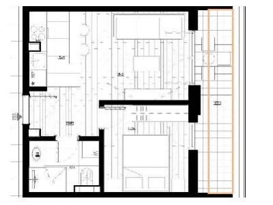
Tip nekretnine: Stan ID: 130622 Površina: 41m² Broj soba: 1.5 Sprat: IV / Datum ažuriranja: 20/03/2026
  • Terasa
  • Lođa
  • Nov
  • Parking
Dodatni opis:
Klima, u izgradnji, garaža, nova fasada, dobar ulaz. Prodaja stanova u novogradnji – Radiofar, Surčin U ponudi je moderan stambeno-poslovni kompleks u izgradnji, smešten u mirnom i perspektivnom delu naselja Radio Far, u opštini Surčin. Projekat obuhvata tri lamele, pažljivo osmišljene kako bi zadovoljile potrebe kako za stanovanjem, tako i za poslovanjem. Lamela 1 i Lamela 2 projektovane su kao poslovni apartmani, dok je Lamela 3 namenjena isključivo stanovanju. U ponudi su funkcionalni stanovi površine od 28 m² do 64 m², idealni kako za život, tako i kao investicija. Objekat se sastoji od prizemlja, prvog , drugog,treceg sprata, i cetvrtog povučenog sprata, što obezbeđuje moderan izgled i dodatni komfor stanarima. Kompleks se nalazi na izuzetno atraktivnoj lokaciji: • udaljen svega 500 metara od aerodroma • u ulici Svetog Save, iza Autokomerca • u neposrednoj blizini Zagrebačkog autoputa • na samo 5 km od Zemuna i 10 km od centra Beograda • dobro povezan autobuskim linijama gradskog prevoza U neposrednoj blizini nalaze se prodavnice, uključujući market „Sunce“, kao i manji lokalni objekti, što dodatno doprinosi svakodnevnoj praktičnosti. Kupcima su na raspolaganju parking i garažna mesta: • parking mesto: 6.500 € + PDV • garažno mesto: 15.000 € + PDV Cene nekretnina: • poslovni apartmani: 1.850 €/m² + 20% PDV • stanovi: 1.850 €/m² + 10% PDv Ovaj kompleks predstavlja odličnu priliku za sve koji traže kvalitetnu novogradnju na dobro povezanoj lokaciji, sa brzim pristupom gradu, ali i mirnim okruženjem za život. Zavrsetak prve lamele decembar2026,a kraj je jun 2027 više info i rezervaciju stan
Agencijska provizija 2%.

Agent
Sanja Grubišić
sanja@beocitynekretnine.rs
0691721973
Besplatno zakažite savetovanje za stambeni i keš kredit
ZAKAŽITE

Oglašavamo nekretnine na oglasniku nekretnine365.com

Slične nekretnine

46 m² 85.100 €
Surčin - Radiofar, Autoput za Zagreb
39 m² 72.150 €
Surčin - Radiofar, Autoput za Zagreb
24 m² 44.400 €
Surčin - Radiofar, Autoput za Zagreb
60 m² 111.000 €
Surčin - Radiofar, Autoput za Zagreb