- Lift
- Terasa
Dodatni opis:
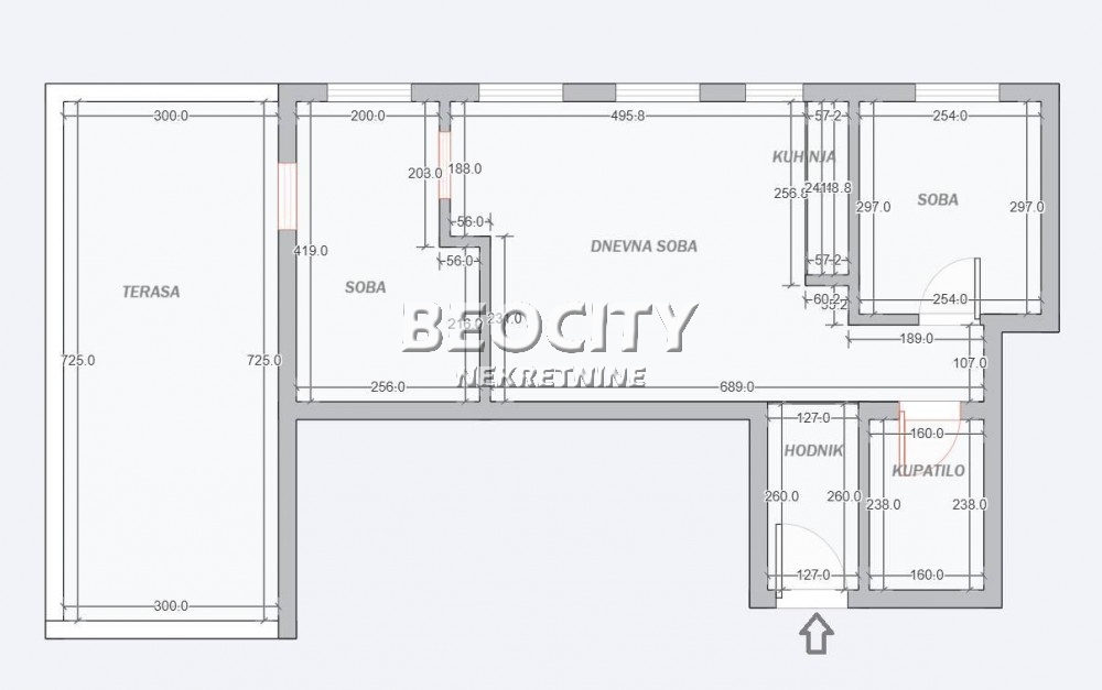
Odmah useljiv, atraktivan veoma svetao stan, 48m grejne površine, 22m terasa koja nije u papirima. Stan je nivo niže u odnosu na ulaz. Zbog pada terena je visina prvog sprata. Ispod su garaže. Vodi se kao atelje. Samo za keš. Parking mesto 6000€.
Agencijska provizija 2%.
Linije gradskog prevoza: 62
Besplatno zakažite savetovanje za stambeni i keš kredit
ZAKAŽITE →
Oglašavamo nekretnine na oglasniku nekretnine365.com
ENGLESKI
